El Campello a 400 metros de la playa.

El Campello, El Campello, El Campello, 03560

Detalles

Oferta
Compra
Municipio
El Campello
Built In
2001

Infomación general

En una de las zonas más consolidadas de El Campello, a escasos 400 metros del mar y junto a la Avenida Ausiàs March, se alza esta vivienda que reinterpreta con acierto el concepto de casa de pueblo tradicional desde una óptica contemporánea. Su proximidad a la playa y la ausencia de gastos de comunidad refuerzan el atractivo de una propiedad concebida para disfrutar del espacio y la privacidad.

Construida en 2001, la vivienda combina el carácter de la arquitectura residencial tradicional con las comodidades de una edificación moderna. Su tipología, a medio camino entre el adosado y la casa de pueblo, la convierte en una propuesta singular, difícil de encontrar en ubicaciones tan privilegiadas. La cuidada distribución en tres plantas y su excelente estado de conservación permiten una ocupación inmediata, manteniendo una atmósfera cálida y acogedora en cada estancia.

El proyecto destaca por su amplitud interior y su capacidad para adaptarse a las necesidades de familias que valoran el espacio, así como de quienes buscan una vivienda versátil, capaz de albergar distintos usos sin renunciar al confort. El patio exterior privado, inundado de luz natural, actúa como un valioso elemento articulador entre interior y exterior, aportando calidad espacial y funcionalidad al conjunto.

La planta principal, con acceso directo desde la calle, alberga un salón de generosas dimensiones y una cocina amplia, equipada con despensa y salida directa al patio, concebido como un espacio cotidiano de disfrute y reunión.

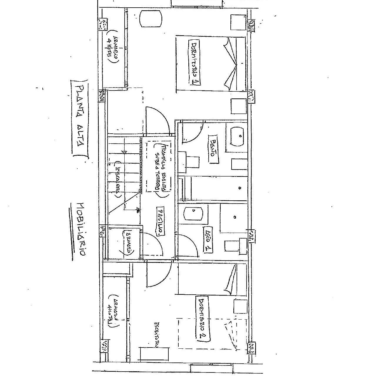
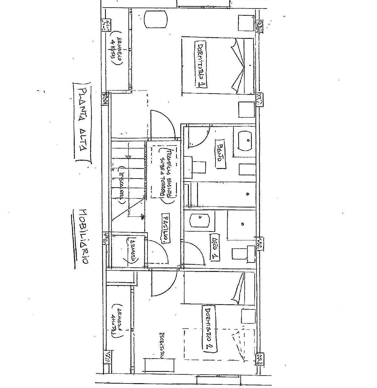
En la primera planta se disponen dos dormitorios y dos baños completos, uno de ellos integrado en la suite principal, configurando una zona de descanso íntima y bien definida. Desde esta planta, hay una trampilla que accede a la cubierta pisable superior (terraza).

El nivel inferior acoge una amplia sala polivalente, dos dormitorios adicionales y un baño completo, ampliando las posibilidades de uso de la vivienda y reforzando su idoneidad para familias numerosas o para quienes desean espacios flexibles para trabajo, ocio o invitados.

Su entorno inmediato completa la propuesta arquitectónica: comercios, centros educativos y el Paseo Marítimo se encuentran a pocos minutos a pie, permitiendo disfrutar de un estilo de vida cómodo y tranquilo, con todos los servicios al alcance.

Una vivienda que destaca por su equilibrio entre ubicación, espacio y calidad constructiva, pensada para quienes valoran la arquitectura residencial con carácter y buscan un hogar amplio, funcional y bien integrado en su entorno.

¿Te gustaría visitarla? Concierta tu visita con Costamar Inmo.

Comodidades

Aire acondicionado
Amueblado
Centros educativos
Parada autobús
Parada tram
Terraza

Virtual Tour

Propiedades similares

Dejar un comentario

Your email address will not be published.

Este sitio usa Akismet para reducir el spam. Aprende cómo se procesan los datos de tus comentarios.

© 2021 Costamar Inmo - Política de privacidad - Política de cookies - Aviso legal - Contacto

Web elaborada con la ayuda de: Alfa Lyncis Comunicación